MB-60EI
MB-60E EI est destiné à réaliser des portes coupe-feu intérieures et extérieures à un ou deux vantaux. Il permet également de fabriquer des « fenêtre techniques » et des cloisons coupe-feu. Les constructions basées sur le système MB-60E EI sont classifiées résistantes au feu EI15 ou EI30 suivant la PN-EN 13501-2+A1:2010. Il prévient également la propagation du feu (NRO).
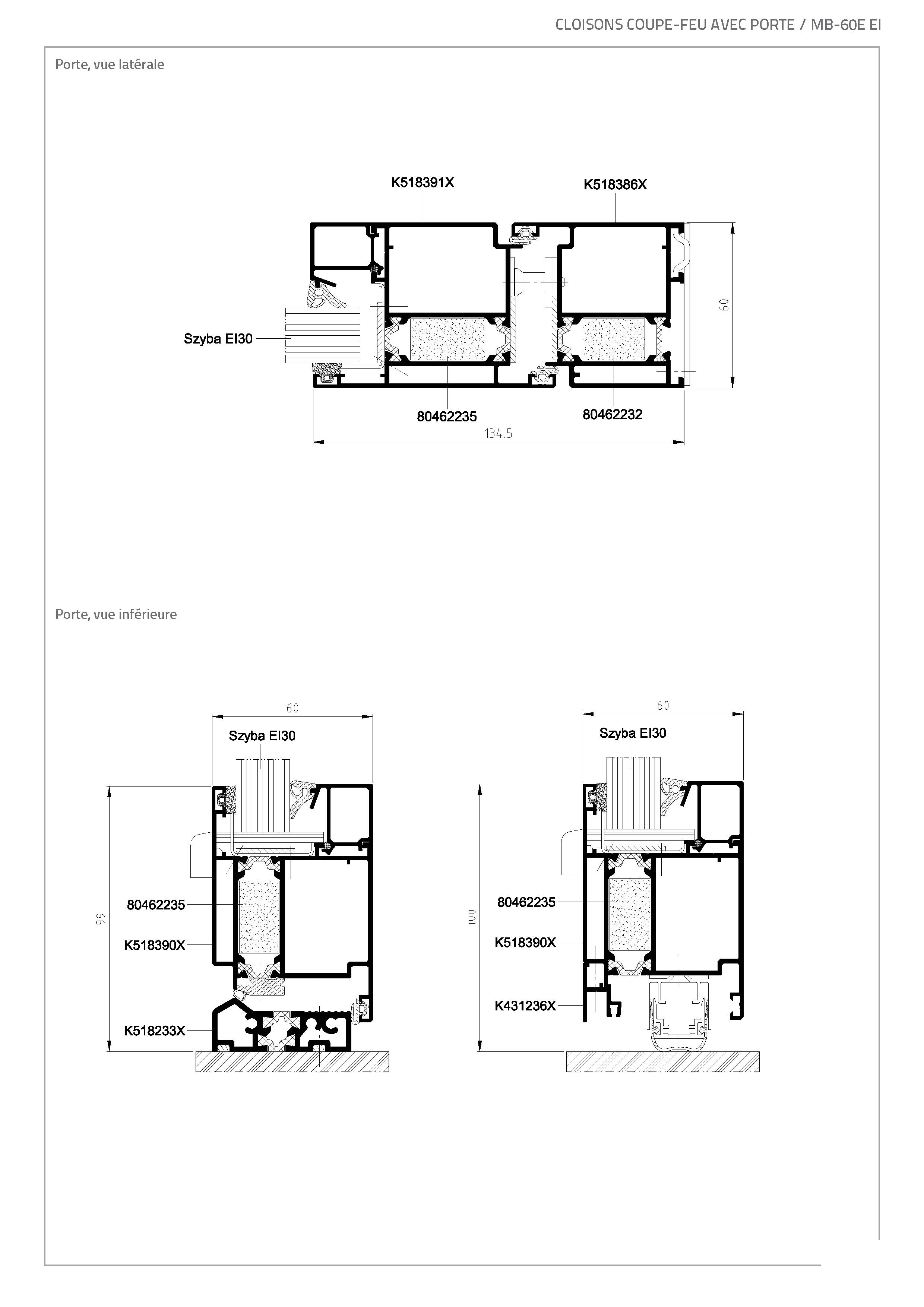
La construction repose sur des profilés aluminium à rupture de pont thermique avec profondeur structurelle des profilés de 60 mm. La résistance au feu de la construction est assurée par des éléments d'isolation qui sont insérés dans les chambres internes de ses profilés. En outre, les constructions sont équipées de bandes intumescentes, qui empêchent la propagation du feu.
Possibilité d'utiliser tous les types communs de vitrages résistants au feu classés EI15 et EI30 (épaisseur de 5 à 41 mm). Contrairement à d'autres systèmes coupefeu, les vitrages du MB-60 E EI sont fixés de l'intérieur à l'aide des parcloses. Des éléments en acier spéciaux sont un élément important pour protéger le vitrage de tomber lors de l'incendie.
MB-60E EI permet la fabrication de portes aux dimensions max. de vantail : L jusqu'a 1,4 m H jusqu'à 2,475 m. Ainsi, la porte à deux vantaux peut être 2,58 m de large. Les capacités structurelles et la compatibilité avec d'autres systèmes de la série MB rend cette solution une proposition très attrayante dans cette classe de produits, tout en offrant une excellente protection contre l'incendie.








