MB-78 EI
Le système MB-78EI se caractérise par son étanchéité et son niveau élevé de protection contre le feu. Il est conforme aux normes polonaises et européennes de plus en plus sévères en matière de cloisons de séparation pour les bâtiments dans lesquels des zones de sécurité doivent être aménagées pour garantir l'évacuation des personnes et des biens en cas d'incendie.
Ce système peut être utilisé pour construire des cloisons anti-incendie intérieures ou extérieures, pourvues de portes à un ou deux battants, de classe de résistance au feu EI15, EI30, EI45 ou EI60 selon les normes PN-B-02851-1:1997 et PN-EN 13501-2:2005. Il est largement compatible avec les systèmes de portes et fenêtres MB-45, MB-60 et MB-70 d'ALUPROF S.A. (ces systèmes sont basés sur les mêmes profilés, détails, ferrures, modes de fabrication, etc.).
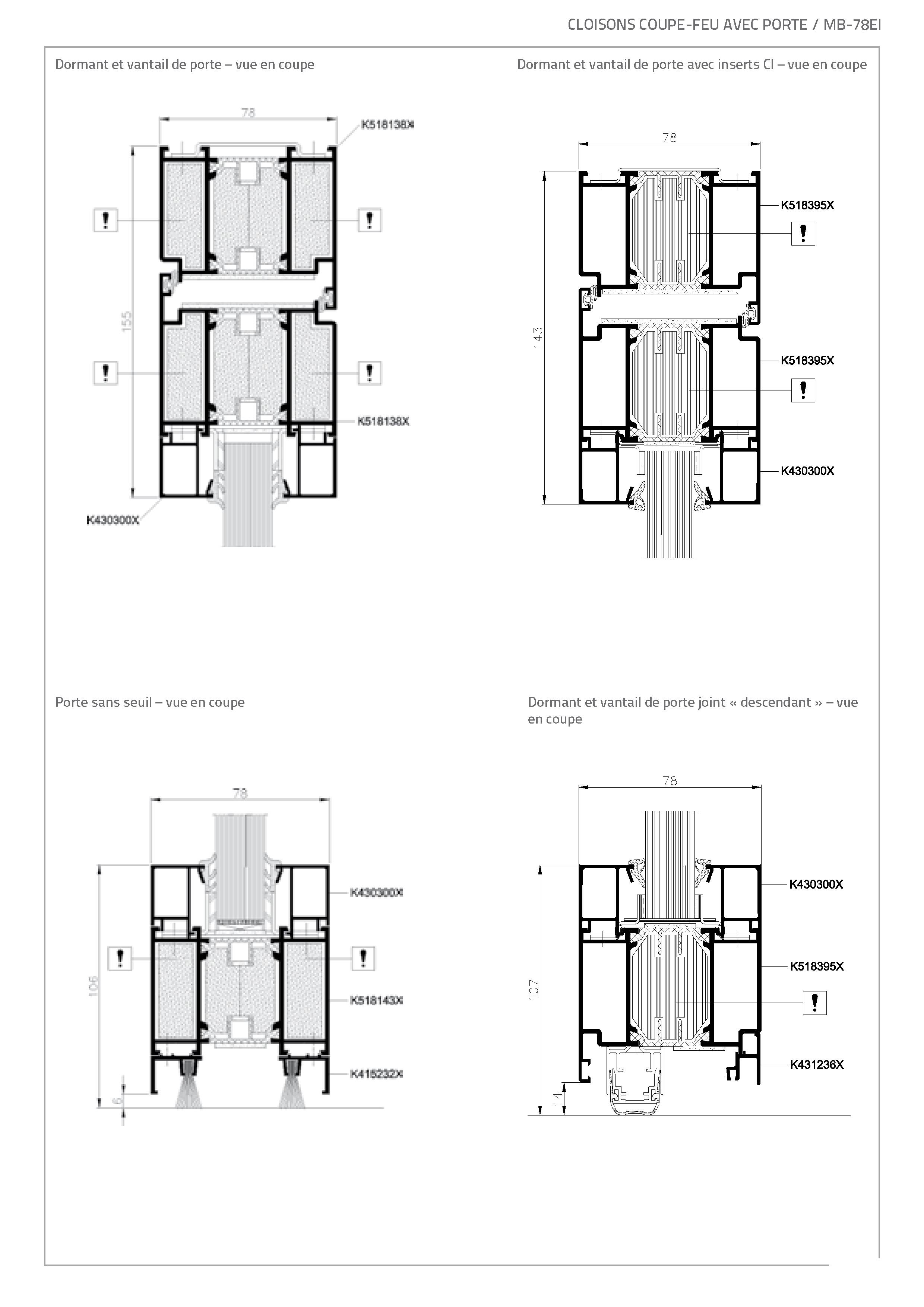
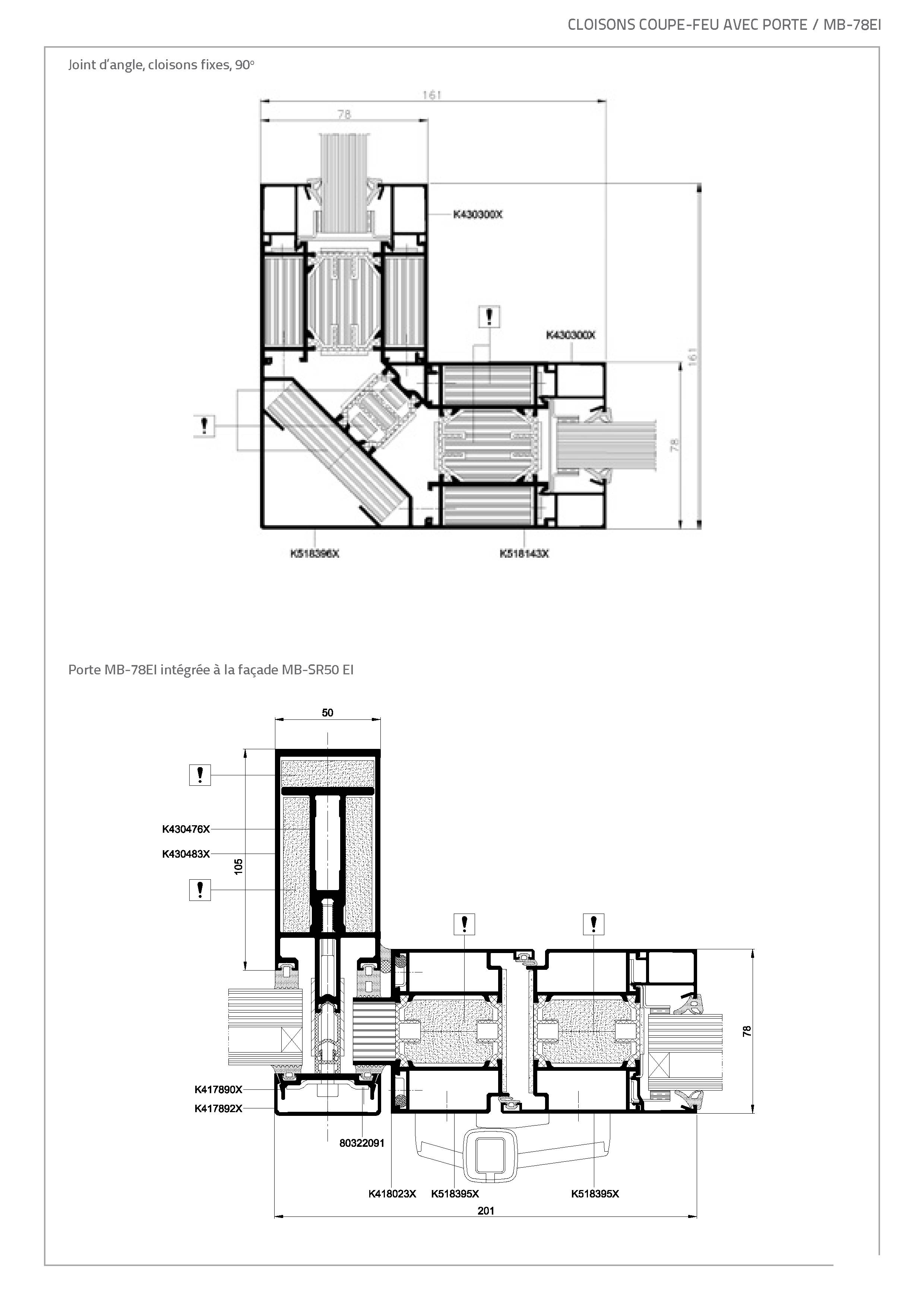
Les constructions système MB-78 EI reposent sur des profilés d'aluminium à isolation thermique. L'épaisseur de la construction est de 78 mm. Les profilés se caractérisent par leur coefficient de déperdition de chaleur (U) très faible car ils sont séparés par un profilé isolant de 34 mm de large. Le système supporte tous les types de vitrages de classe de résistance au feu appropriée (épaisseur de vitrage de 8 à 49 mm). Les cadres peuvent également être garnis de divers remplissages étanches à la fumée. Les essais réalisés par l'Institut des Techniques du Bâtiment à Varsovie ont en outre démontré que les cloisons construites au moyen de ce système se caractérisent également par une très bonne isolation acoustique (jusque 40 dB).
Le système a reçu l'Agrément Technique ATG 3039 a été délivré pour la construction classée EI60, et l'Agrément Technique ATG 3040 couvre les constructions EI30.
















